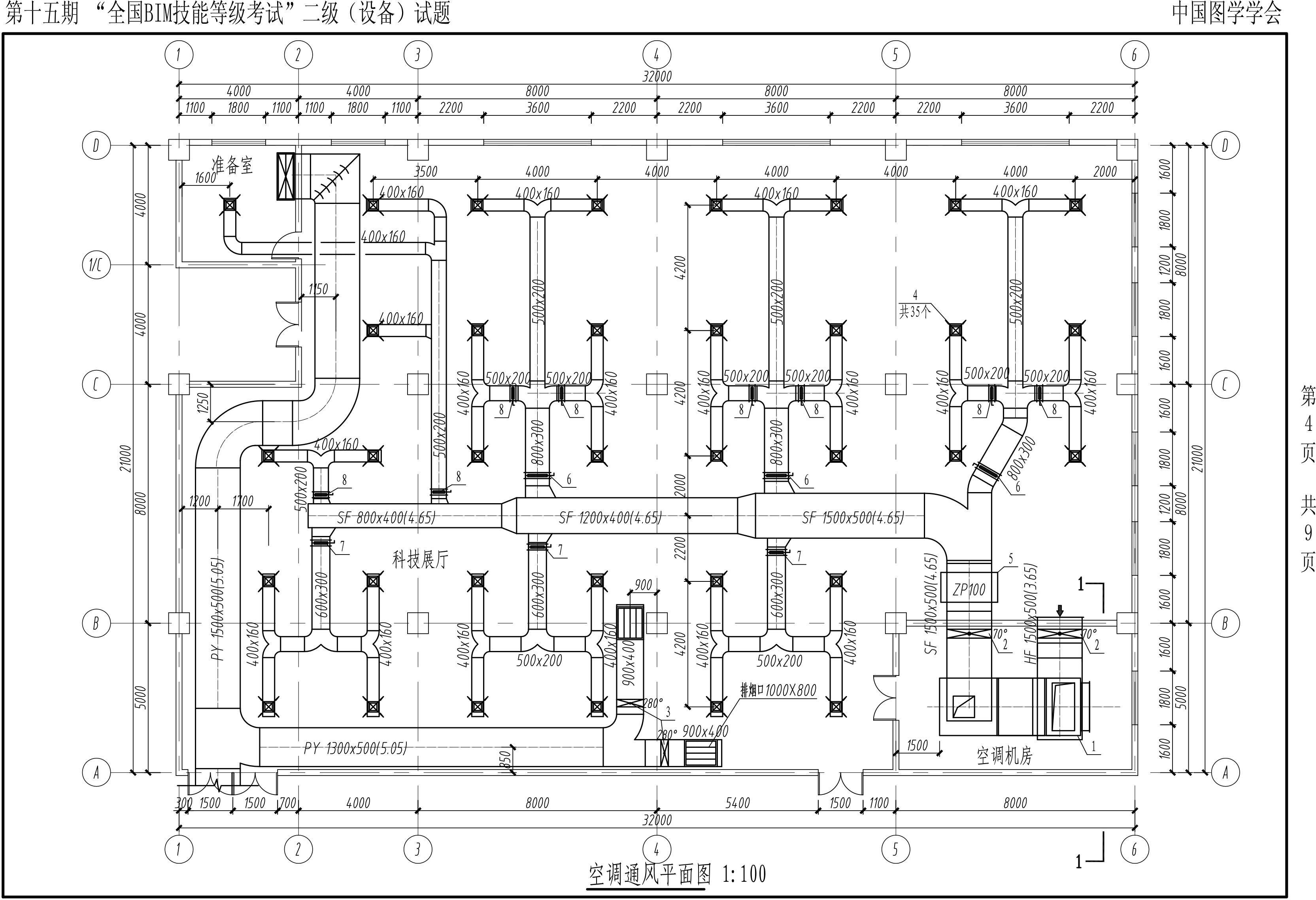
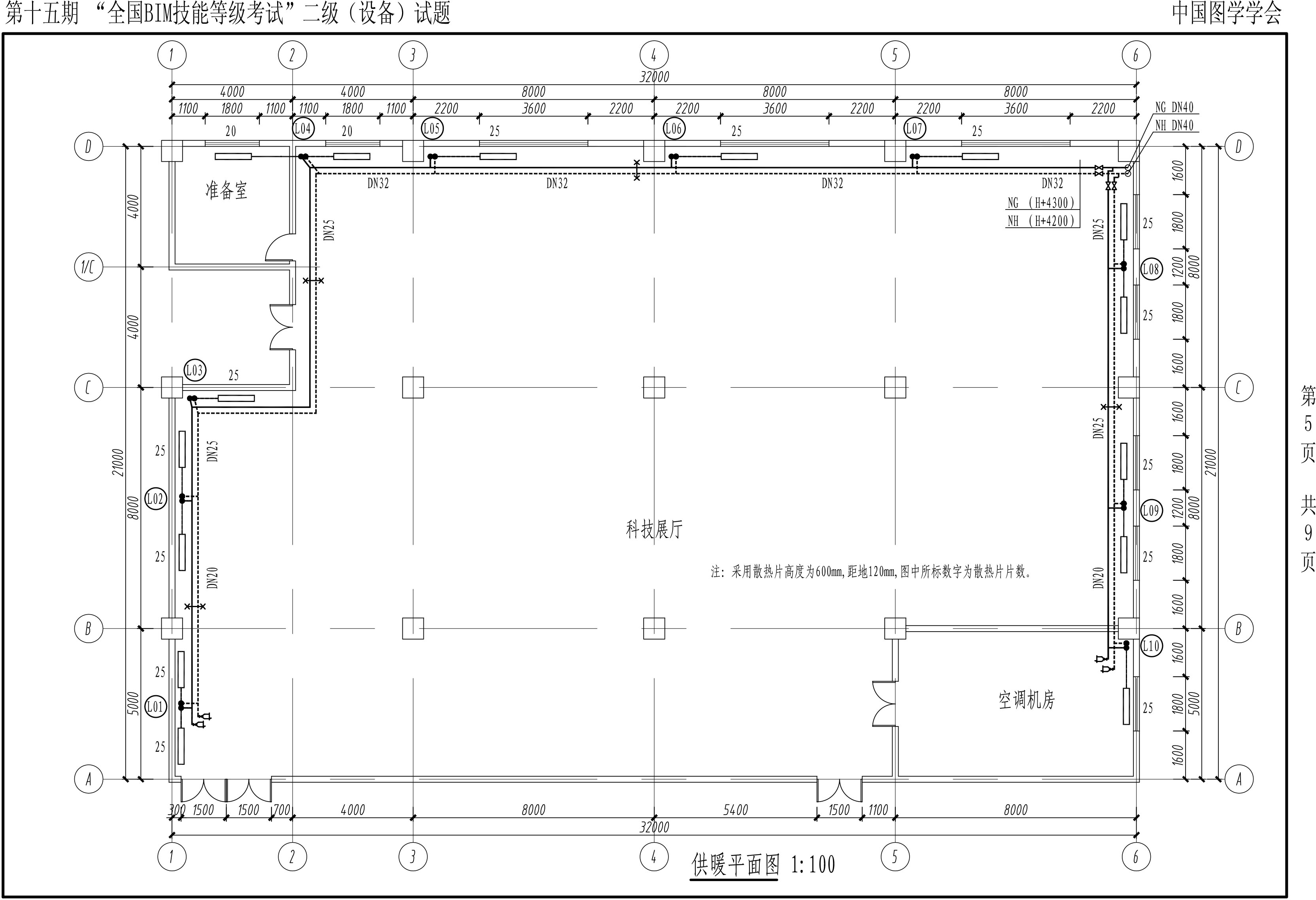
第十五期全國BIM技能等級考試二級設備試題第三題
第十五期全國BIM技能等級二級考試已經(jīng)結束,不知道考生考的怎么樣呢?第十五期全國BIM技能等級二級設備考試試卷如下,供廣大考生參考學習。




報考指南
閱讀排行
關注更多
立即掃碼添加學習顧問
報考指導
考情速遞
備考計劃
幫你選課


010-82333888






掃碼添加顧問老師
掃一掃下載正保