建設工程教育網(wǎng) > 專業(yè)資料 > 施工方案 > 正文
2013-08-20 09:57 建設工程教育網(wǎng)整理 【大 中 小】【打印】【我要糾錯】
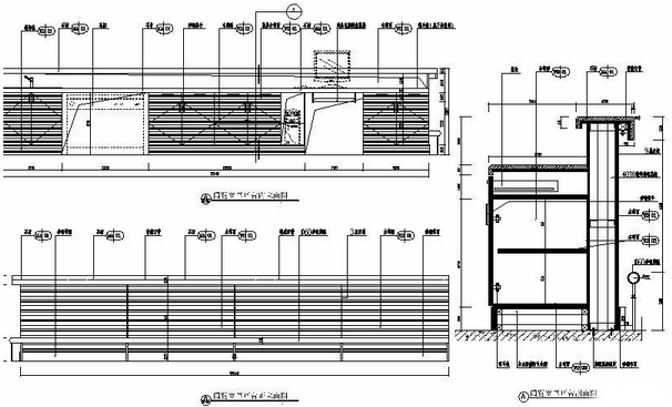
導語:下圖為吧臺里面的縮略圖,希望可以為大家作一參考。

1、凡本網(wǎng)注明“來源:建設工程教育網(wǎng)”的所有作品,版權均屬建設工程教育網(wǎng)所有,未經(jīng)本網(wǎng)授權不得轉載、鏈接、轉貼或以其他方式使用;已經(jīng)本網(wǎng)授權的,應在授權范圍內使用,且必須注明“來源:建設工程教育網(wǎng)”。違反上述聲明者,本網(wǎng)將追究其法律責任。
2、本網(wǎng)部分資料為網(wǎng)上搜集轉載,均盡力標明作者和出處。對于本網(wǎng)刊載作品涉及版權等問題的,請作者與本網(wǎng)站聯(lián)系,本網(wǎng)站核實確認后會盡快予以處理。
本網(wǎng)轉載之作品,并不意味著認同該作品的觀點或真實性。如其他媒體、網(wǎng)站或個人轉載使用,請與著作權人聯(lián)系,并自負法律責任。
3、本網(wǎng)站歡迎積極投稿。